13.03.2025 Jakob Schoof

Kaffeespeicher Santos in Rotterdam saniert

Relikt aus dem Jahr 1901 inmitten von Neubauten: Der Kaffeespeicher Santos in Rotterdam soll künftig die Räume des Niederländischen Fotomuseums aufnehmen. © Studio Hans Wilschut

Der Kaffeespeicher Santos im Rotterdamer Rheinhafen ist ein hervorragendes Beispiel für die Lagerhausarchitektur vom Beginn des 20. Jahrhunderts. 1901 von J.P. Stok und J.J. Kanters errichtet, bildet er einen identitätsstiftenden Ankerpunkt in dem ehemaligen Hafengelände, das inzwischen weitgehend zum Wohn- und Bürostandort umgewandelt wurde. Wie seine schmucklosen Seitenfassaden beweisen, war er ursprünglich als Bestandteil einer durchgehenden Lagerhauszeile geplant. Diese blieb jedoch unvollendet und der Speicher bis heute ein Solitärbau.

Ein industrieller Innenraum mit bordeauxfarbenen Stahlstützen und betonierten Decken. In der Mitte ein Atrium, das zu den oberen und unteren Geschossen führt. Eine Stahltreppe verbindet die Ebenen, und die Wände sind aus Ziegeln.Ein industrieller Innenraum mit bordeauxfarbenen Stahlstützen und betonierten Decken. In der Mitte ein Atrium, das zu den oberen und unteren Geschossen führt. Eine Stahltreppe verbindet die Ebenen, und die Wände sind aus Ziegeln.
Ursprünglich war im Speicher ein Showroom des Möbelkaufhauses stilwerk vorgesehen. Jetzt sollen hier Ausstellungen stattfinden. © Studio Hans Wilschut

Nutzerwechsel in der Planungsphase

Das soll auch nach dem Umbau durch Renner Hainke Wirth Zirn Architecten aus Hamburg und ihre Rotterdamer Partner WDJArchitecten so bleiben. Der Umbau begann bereits 2016, damals noch als erste niederländische Filiale für das Möbeldesignkaufhaus Stilwerk, das hier seine erste Filiale in den Niederlanden eröffnen wollte. Kurz vor der Eröffnung 2023 erwarb das Niederländische Fotomuseum das Bauwerk und will dort Ende 2025 einziehen. Die Planänderungen aufgrund des Nutzerwechsels hielten sich zum Glück in Grenzen. Schon das Stilwerk hatte ein Bauwerk mit Wiedererkennungswert und vielen öffentlichen Nutzungen angestrebt. Dazu zählten unter anderem ein Restaurant und ein Coworking-Space im sechsten Geschoss. Das Erdgeschoss sollte unter anderem ein Café und Veranstaltungsräume enthalten. 

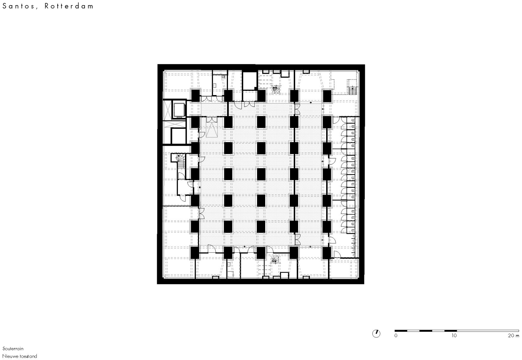
Viele Nutzungen unter einem Dach

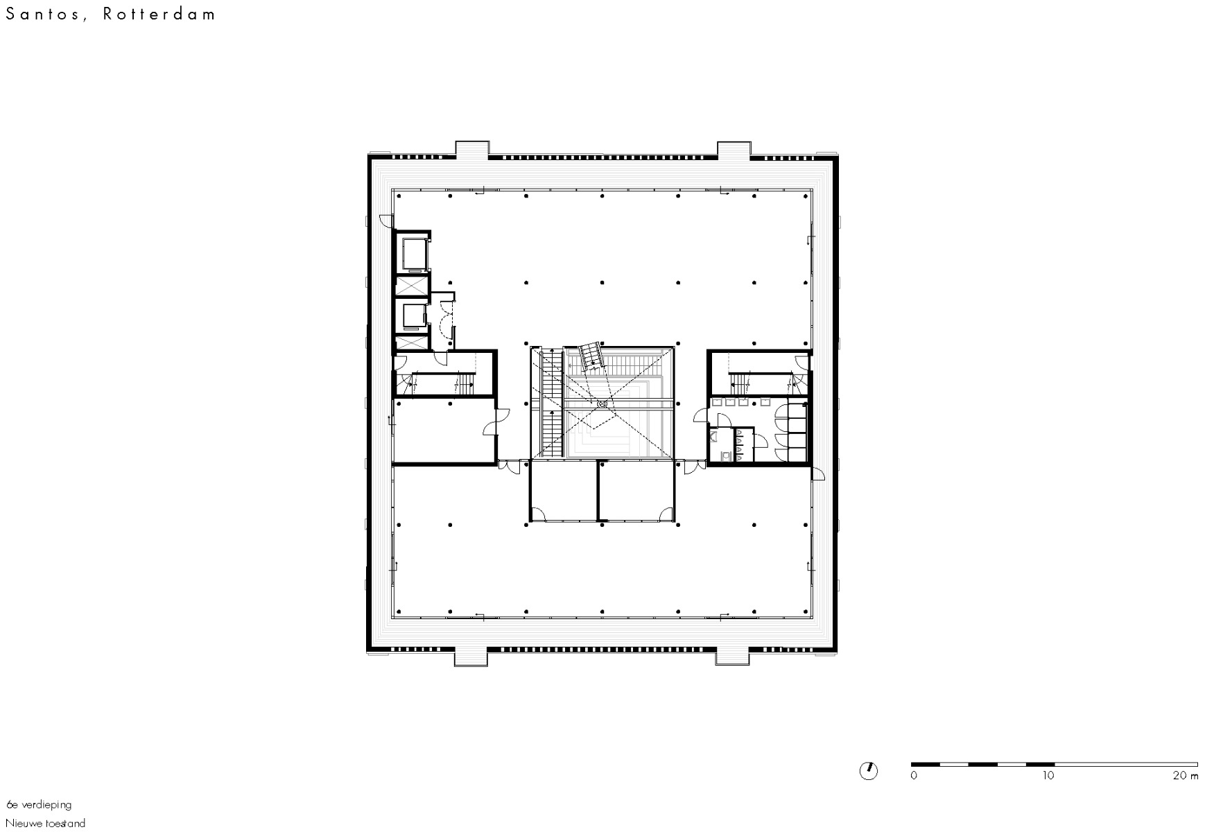
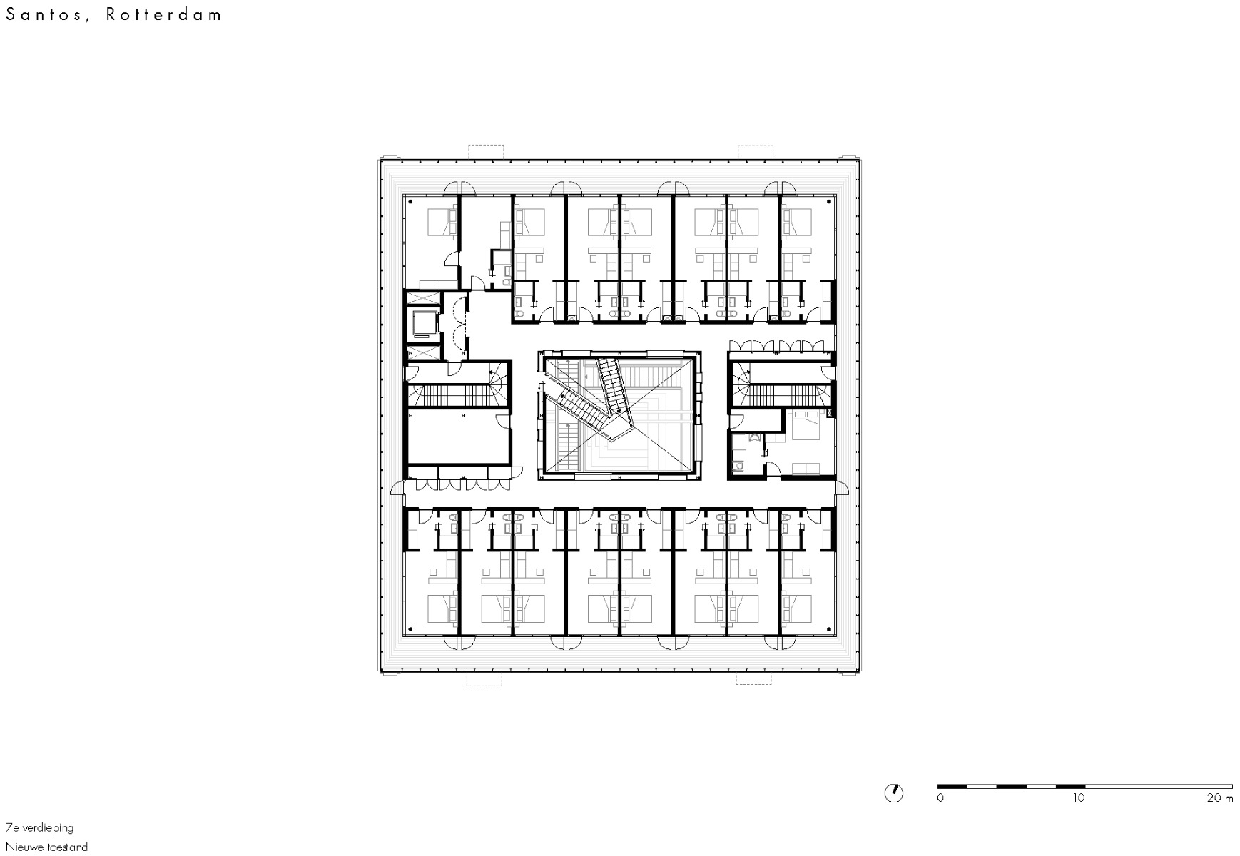
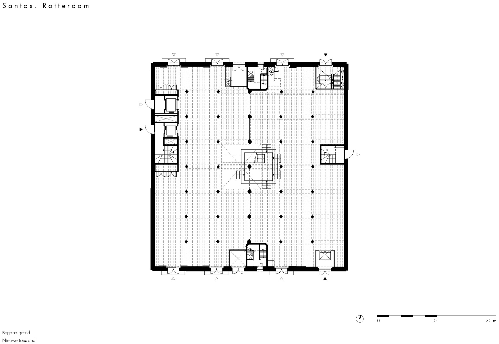
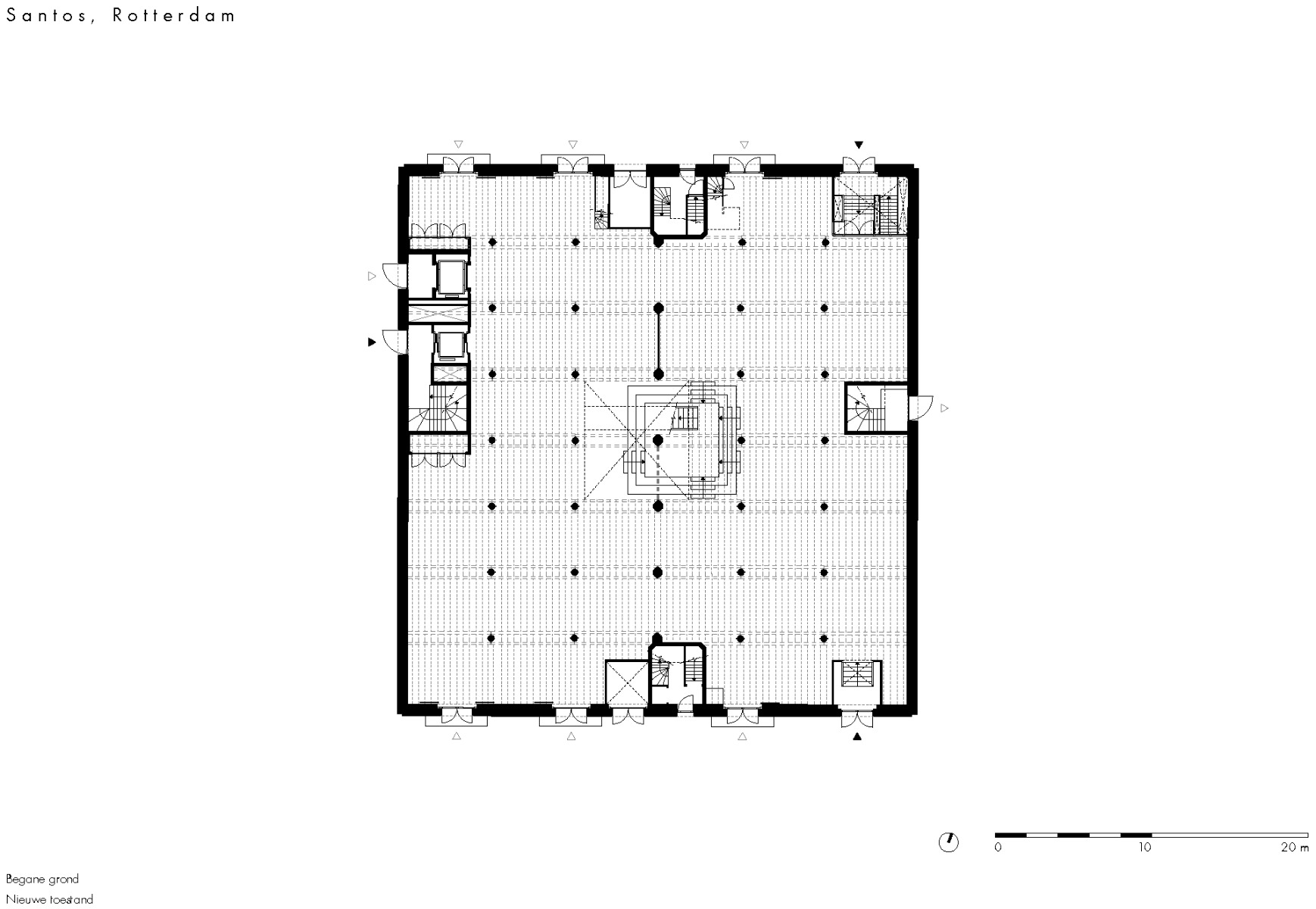
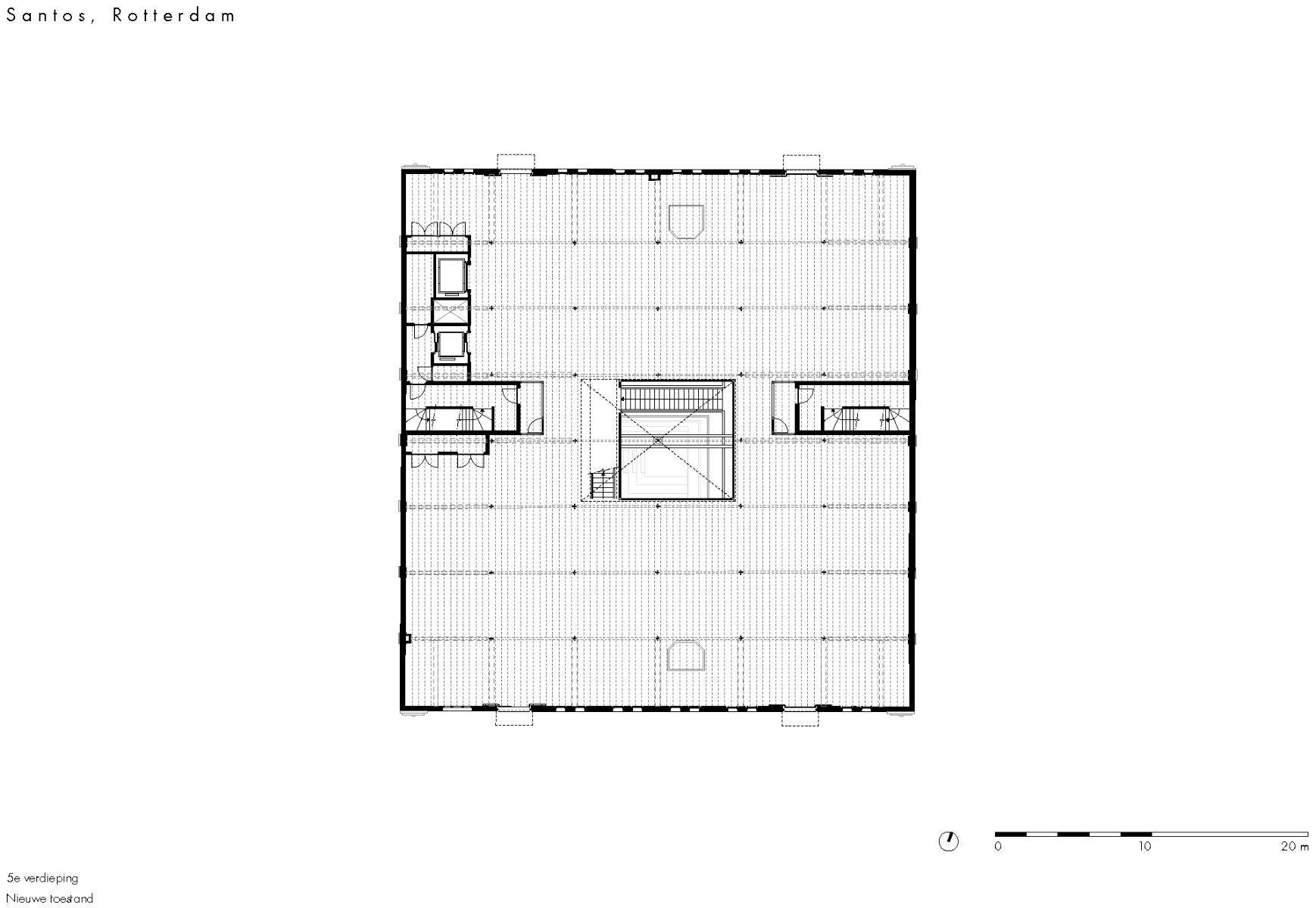
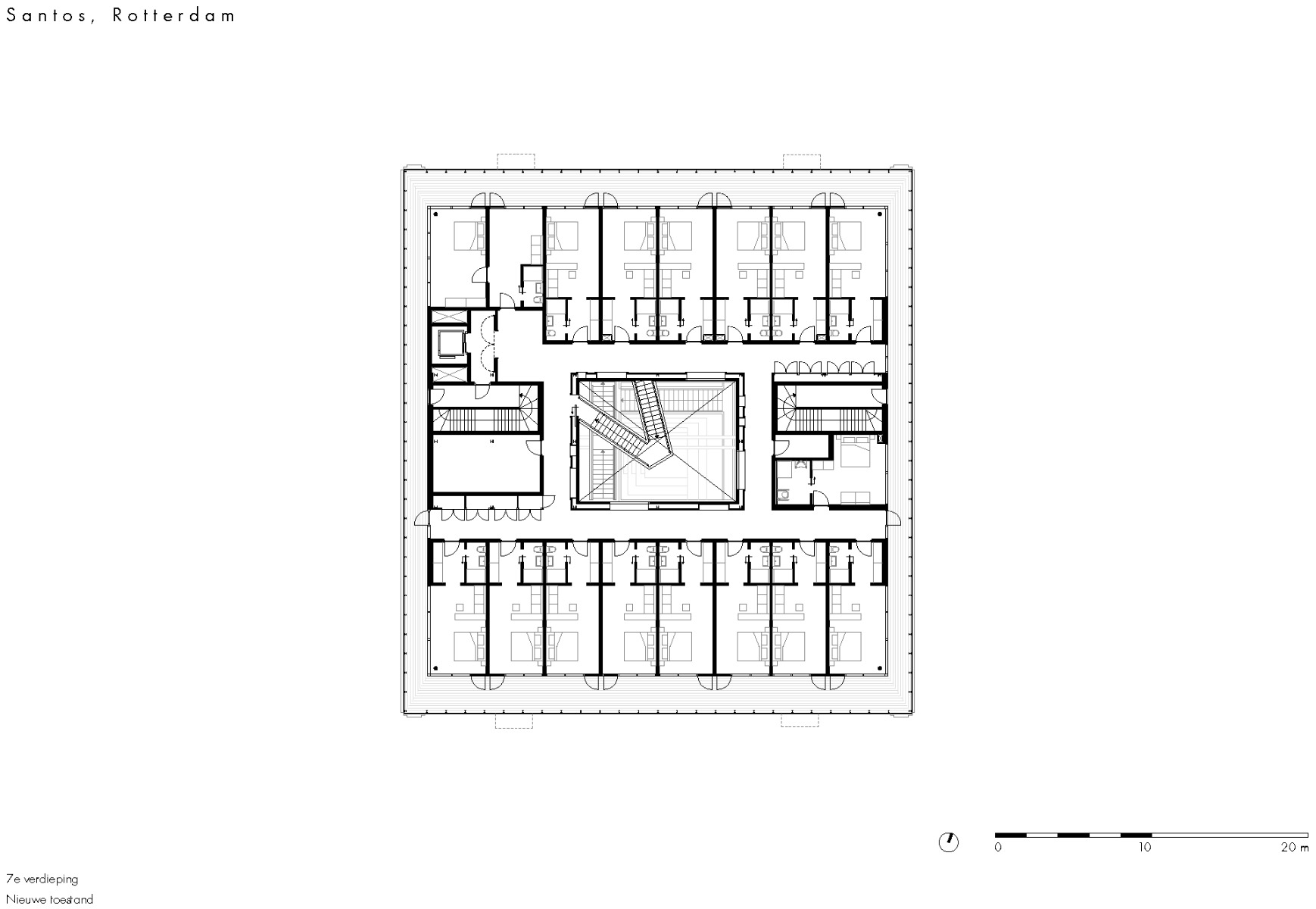
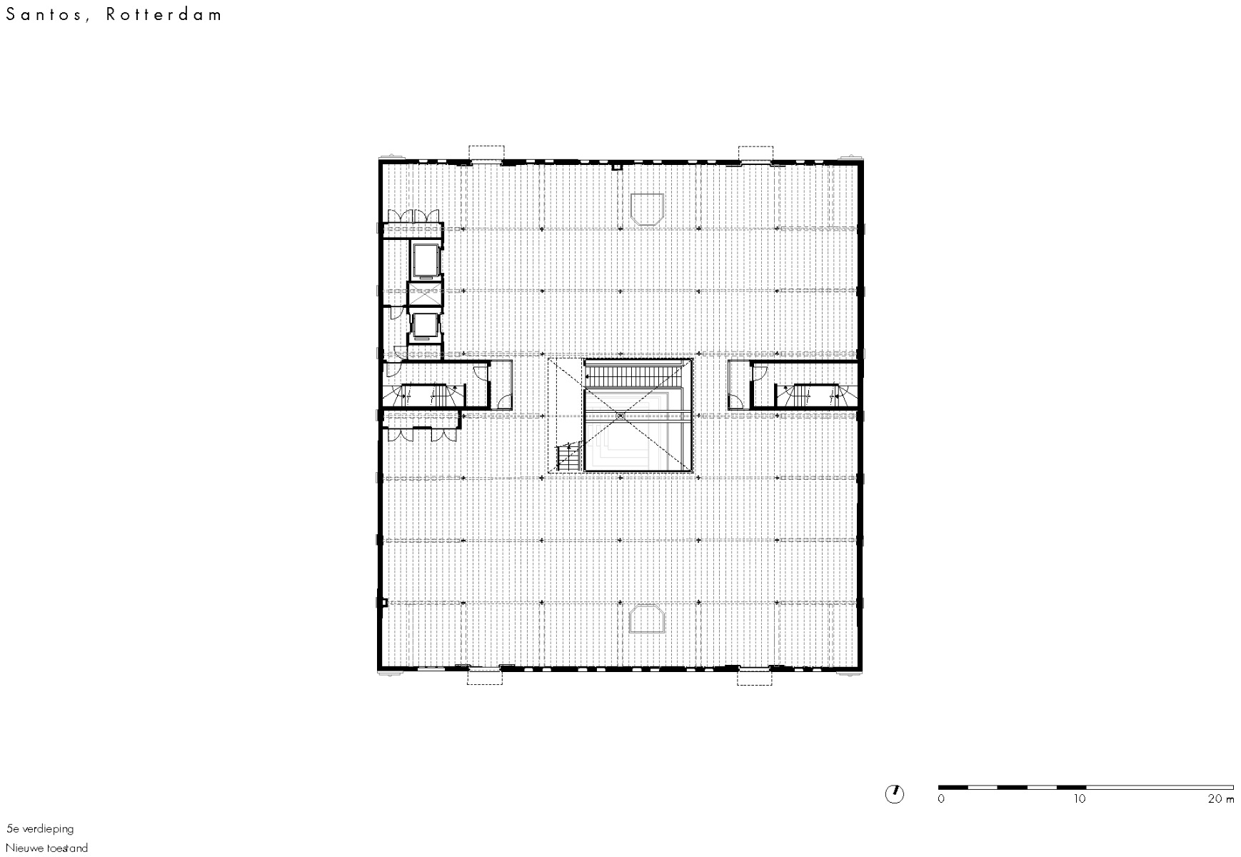
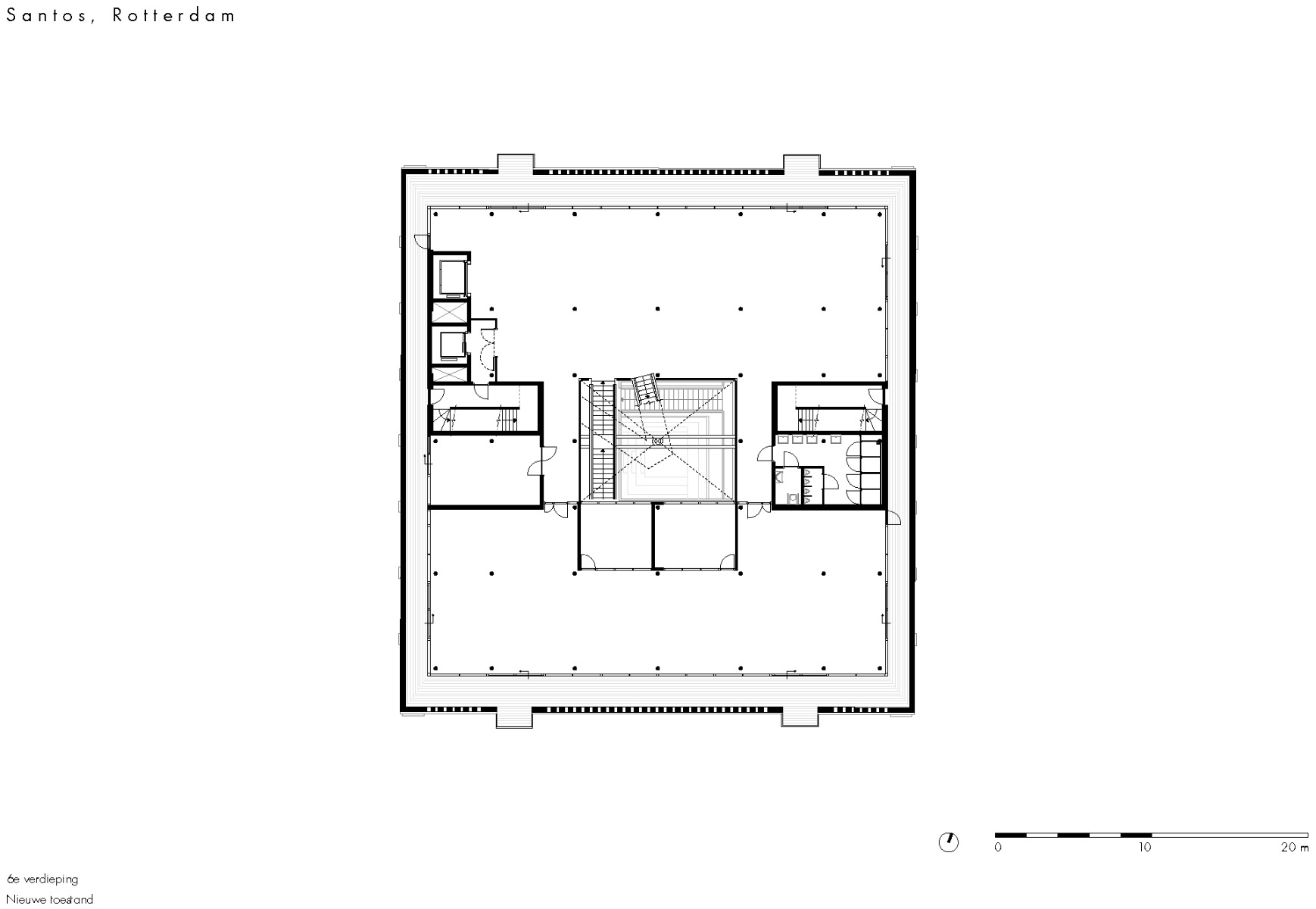
Das Fotomuseum übernimmt dieses Konzept im Wesentlichen. Das Erdgeschoss soll mit Café, Museumsshop, Bibliothek und dem sogenannten Freihafen, einem Veranstaltungsbereich, komplett öffentlich zugänglich werden. Darüber folgen zwei von außen einsehbare, klimatisierte Archivetagen, eine Restaurationswerkstatt und der Ausstellungsbereich. Im zurückgesetzten, komplett verglasten sechsten Geschoss liegen die Büroräume der Museumsverwaltung und ein Restaurant. Im siebten Obergeschoss – ebenfalls zurückgesetzt hinter die markante, neue Dachkrone – sind 16 Kurzzeit-Apartments entstanden, die das Nederlandse Fotomuseum zusammen mit externen Betreibern bewirtschaften wird. Auch sie waren bereits im Nutzungskonzept des Stilwerk vorgesehen.

Der Dachaufbau aus Aluminium-Lochpaneelen erzeugt ein Lichtspiel aus Sonnenmustern auf den umlaufenden Laubengängen mit Holzboden. Die Holzfassade ist mit vielen Terrassentüren versehen, die auf die Laubengangbalkone führen.Der Dachaufbau aus Aluminium-Lochpaneelen erzeugt ein Lichtspiel aus Sonnenmustern auf den umlaufenden Laubengängen mit Holzboden. Die Holzfassade ist mit vielen Terrassentüren versehen, die auf die Laubengangbalkone führen.
Im Dachaufbau aus Aluminium-Lochpaneelen sind 16 Kurzzeitwohnungen untergebracht. © Studio Hans Wilschut
Der Innenraum zeigt einen Deckendurchbruch über alle Ebenen, darüber spannt sich ein Glasdach. Stahltreppen verbinden die Geschosse. Das oberste Geschoss ist mit gemusterten Metallpaneelen verziert und hebt sich von den industriellen Elementen ab.Der Innenraum zeigt einen Deckendurchbruch über alle Ebenen, darüber spannt sich ein Glasdach. Stahltreppen verbinden die Geschosse. Das oberste Geschoss ist mit gemusterten Metallpaneelen verziert und hebt sich von den industriellen Elementen ab.
© Studio Hans Wilschut

Deckendurchbruch über alle Ebenen

Die Haupterschließung, die zuvor mithilfe von Aufzügen vor der Fassade erfolgte, wurde nach innen verlegt; dort entstand ein Luftraum mit Treppe, der alle Etagen miteinander verbindet. An den neu geschaffenen Deckendurchbrüchen ließen die Architekten die Deckenbalken und den Bodenbelag, nicht aber die stählernen Stützen und Hauptträger entfernen. Die Deckenöffnungen sind geschossweise leicht gegeneinander versetzt, um räumliche Spannung zu erzeugen. An den Außenaufzügen wurden die ehemaligen Ladeluken verglast und bringen nun zusätzliches Licht ins Haus. Die ehemals hier angebrachten Türen dienen – soweit noch vorhanden - nun der Verdunklung. Sie wurden nach innen hinter die Glasfassade zurückversetzt.

Der Innenraum hat große verglaste Öffnungen in der Hauptfassade, mit nach innen öffnenden, grünen Fensterläden. Der Boden ist aus Beton, und gefärbte Stahlstützen sowie Stahlträger prägen den Raum. Die Wände bestehen aus Backstein.Der Innenraum hat große verglaste Öffnungen in der Hauptfassade, mit nach innen öffnenden, grünen Fensterläden. Der Boden ist aus Beton, und gefärbte Stahlstützen sowie Stahlträger prägen den Raum. Die Wände bestehen aus Backstein.
Die großen Öffnungen in der Hauptfassade dienten ursprünglich der Warenanlieferung. Sie wurden verglast und die noch vorhandenen Fensterläden nach innen versetzt. © Studio Hans Wilschut

Dachkrone aus perforiertem Aluminium

5Den krönenden Abschluss des sanierten Speichers bildet eine Dachhaut aus perforiertem Aluminium über dem 7. Obergeschoss. Sie ist eine entfernte Reminiszenz an den ursprünglichen Dachaufbau mit den Windenhäusern der Aufzüge, einem Sheddach mit Gauben und dem Namensschild des Bauherrn, der im Lauf des 20. Jahrhunderts verlorenging. Die Metallhülle verdeckt nicht nur die Wohnungen und ihre umlaufenden Terrassen, sondern auch die technischen Aufbauten auf dem Dach. Schließlich sollte auch die „fünfte Fassade“ des Gebäudes ein ansehnliches Bild abgeben – zumal in der näheren Umgebung immer mehr Hochhäuser entstehen. Ein Raster aus dreieckigen Perforationen überzieht die Aluminiumhülle. Ihr Durchmesser variiert: Er wird größer, wo Licht und Durchsicht gewünscht waren, und kleiner, wo unerwünschte Einblicke ferngehalten werden sollten.

Mehr dazu in Detail 5.2025 sowie in unserer Datenbank Detail Inspiration.


Architektur: Renner Hainke Wirth Zirn, WDJArchitecten
Bauherr: Stilwerk Hamburg (bis 2023),
Nederlands Fotomuseum (ab 2023)
Standort: Brede Hilledijk 95, 3072 KD Rotterdam (NL)


Tragwerksplanung: Pieters Bouwtechniek
TGA-Planung: Techniplan
Bauunternehmen: Burgy Bouwbedrijf

https://detail-cdn.s3.eu-central-1.amazonaws.com/media/catalog/product/0/1/01-sanierung-kaffeespeicher-santos-rotterdam-rhwz-wdjarchitecten.jpg?width=437&height=582&store=de_de&image-type=image https://detail-cdn.s3.eu-central-1.amazonaws.com/media/catalog/product/0/2/02-sanierung-kaffeespeicher-santos-rotterdam-rhwz-wdjarchitecten.jpg?width=437&height=582&store=de_de&image-type=image https://detail-cdn.s3.eu-central-1.amazonaws.com/media/catalog/product/0/3/03-sanierung-kaffeespeicher-santos-rotterdam-rhwz-wdjarchitecten.jpg?width=437&height=582&store=de_de&image-type=image https://detail-cdn.s3.eu-central-1.amazonaws.com/media/catalog/product/0/4/04-sanierung-kaffeespeicher-santos-rotterdam-rhwz-wdjarchitecten.jpg?width=437&height=582&store=de_de&image-type=image https://detail-cdn.s3.eu-central-1.amazonaws.com/media/catalog/product/0/5/05-sanierung-kaffeespeicher-santos-rotterdam-rhwz-wdjarchitecten.jpg?width=437&height=582&store=de_de&image-type=image https://detail-cdn.s3.eu-central-1.amazonaws.com/media/catalog/product/0/6/06-sanierung-kaffeespeicher-santos-rotterdam-rhwz-wdjarchitecten.jpg?width=437&height=582&store=de_de&image-type=image https://detail-cdn.s3.eu-central-1.amazonaws.com/media/catalog/product/0/7/07-sanierung-kaffeespeicher-santos-rotterdam-rhwz-wdjarchitecten.jpg?width=437&height=582&store=de_de&image-type=image https://detail-cdn.s3.eu-central-1.amazonaws.com/media/catalog/product/0/8/08-sanierung-kaffeespeicher-santos-rotterdam-rhwz-wdjarchitecten.jpg?width=437&height=582&store=de_de&image-type=image https://detail-cdn.s3.eu-central-1.amazonaws.com/media/catalog/product/0/9/09-sanierung-kaffeespeicher-santos-rotterdam-rhwz-wdjarchitecten.jpg?width=437&height=582&store=de_de&image-type=image https://detail-cdn.s3.eu-central-1.amazonaws.com/media/catalog/product/1/0/10-sanierung-kaffeespeicher-santos-rotterdam-rhwz-wdjarchitecten.jpg?width=437&height=582&store=de_de&image-type=image https://detail-cdn.s3.eu-central-1.amazonaws.com/media/catalog/product/1/1/11-sanierung-kaffeespeicher-santos-rotterdam-rhwz-wdjarchitecten.jpg?width=437&height=582&store=de_de&image-type=image https://detail-cdn.s3.eu-central-1.amazonaws.com/media/catalog/product/1/2/12-sanierung-kaffeespeicher-santos-rotterdam-rhwz-wdjarchitecten.jpg?width=437&height=582&store=de_de&image-type=image https://detail-cdn.s3.eu-central-1.amazonaws.com/media/catalog/product/1/3/13-sanierung-kaffeespeicher-santos-rotterdam-rhwz-wdjarchitecten.jpg?width=437&height=582&store=de_de&image-type=image https://detail-cdn.s3.eu-central-1.amazonaws.com/media/catalog/product/1/4/14-sanierung-kaffeespeicher-santos-rotterdam-rhwz-wdjarchitecten.jpg?width=437&height=582&store=de_de&image-type=image https://detail-cdn.s3.eu-central-1.amazonaws.com/media/catalog/product/1/5/15-sanierung-kaffeespeicher-santos-rotterdam-rhwz-wdjarchitecten.jpg?width=437&height=582&store=de_de&image-type=image https://detail-cdn.s3.eu-central-1.amazonaws.com/media/catalog/product/1/6/16-sanierung-kaffeespeicher-santos-rotterdam-rhwz-wdjarchitecten.jpg?width=437&height=582&store=de_de&image-type=image https://detail-cdn.s3.eu-central-1.amazonaws.com/media/catalog/product/1/7/17-sanierung-kaffeespeicher-santos-rotterdam-rhwz-wdjarchitecten.jpg?width=437&height=582&store=de_de&image-type=image https://detail-cdn.s3.eu-central-1.amazonaws.com/media/catalog/product/1/8/18-sanierung-kaffeespeicher-santos-rotterdam-rhwz-wdjarchitecten-grafik.jpg?width=437&height=582&store=de_de&image-type=image https://detail-cdn.s3.eu-central-1.amazonaws.com/media/catalog/product/1/9/19-sanierung-kaffeespeicher-santos-rotterdam-rhwz-wdjarchitecten-grafik.jpg?width=437&height=582&store=de_de&image-type=image https://detail-cdn.s3.eu-central-1.amazonaws.com/media/catalog/product/2/0/20-sanierung-kaffeespeicher-santos-rotterdam-rhwz-wdjarchitecten-grafik.jpg?width=437&height=582&store=de_de&image-type=image https://detail-cdn.s3.eu-central-1.amazonaws.com/media/catalog/product/2/1/21-sanierung-kaffeespeicher-santos-rotterdam-rhwz-wdjarchitecten-grafik.jpg?width=437&height=582&store=de_de&image-type=image https://detail-cdn.s3.eu-central-1.amazonaws.com/media/catalog/product/2/2/22-sanierung-kaffeespeicher-santos-rotterdam-rhwz-wdjarchitecten-grafik.jpg?width=437&height=582&store=de_de&image-type=image https://detail-cdn.s3.eu-central-1.amazonaws.com/media/catalog/product/2/3/23-sanierung-kaffeespeicher-santos-rotterdam-rhwz-wdjarchitecten-grafik.jpg?width=437&height=582&store=de_de&image-type=image https://detail-cdn.s3.eu-central-1.amazonaws.com/media/catalog/product/2/4/24-sanierung-kaffeespeicher-santos-rotterdam-rhwz-wdjarchitecten-grafik.jpg?width=437&height=582&store=de_de&image-type=image
Copyright © 2024 DETAIL. Alle Rechte vorbehalten.