Erweiterung in Holzbauweise
Wohnhaus im alten Schulgebäude von Bindloss Dawes
Der Erweiterungsbau greift die Kubatur der alten Schule auf – allerdings in Holz- statt Steinbauweise. © Francesca Iovene
Die alte Schule von Pitcombe liegt idyllisch zwischen den Hügeln der Grafschaft Somerset im Südwesten von England. Gemeinsam mit der benachbarten St. Leonard’s Church bildet sie ein historisches Ensemble deutlich außerhalb des eigentlichen Ortszentrums. 1864 errichtet, wurde das Schulgebäude schon in den 1940er-Jahren zum Wohnhaus umgebaut und erhielt in den 1970er-Jahren eine wenig kunstfertige Erweiterung mit einem Schlafzimmer.
Erweiterung mit archetypischer Form
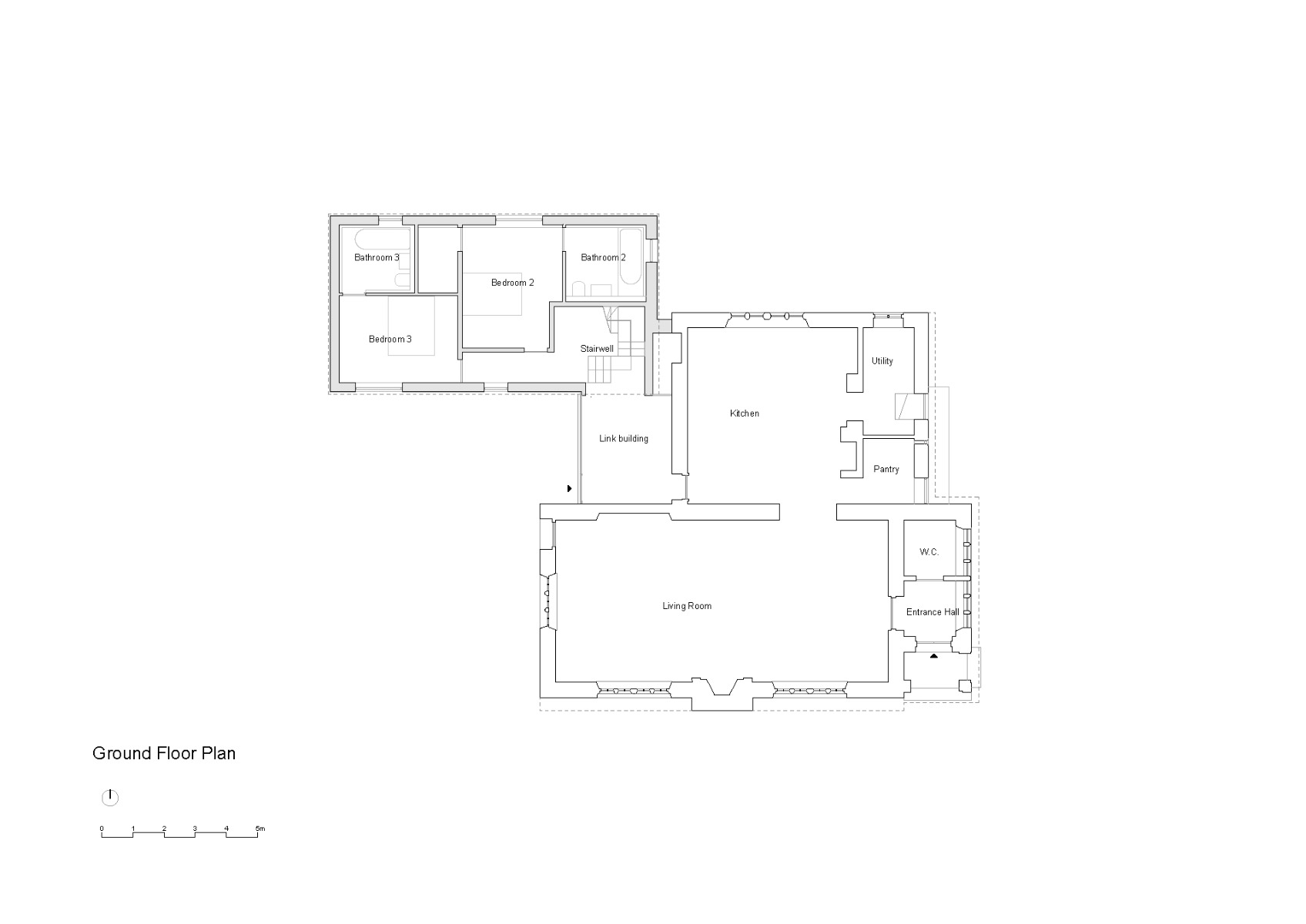
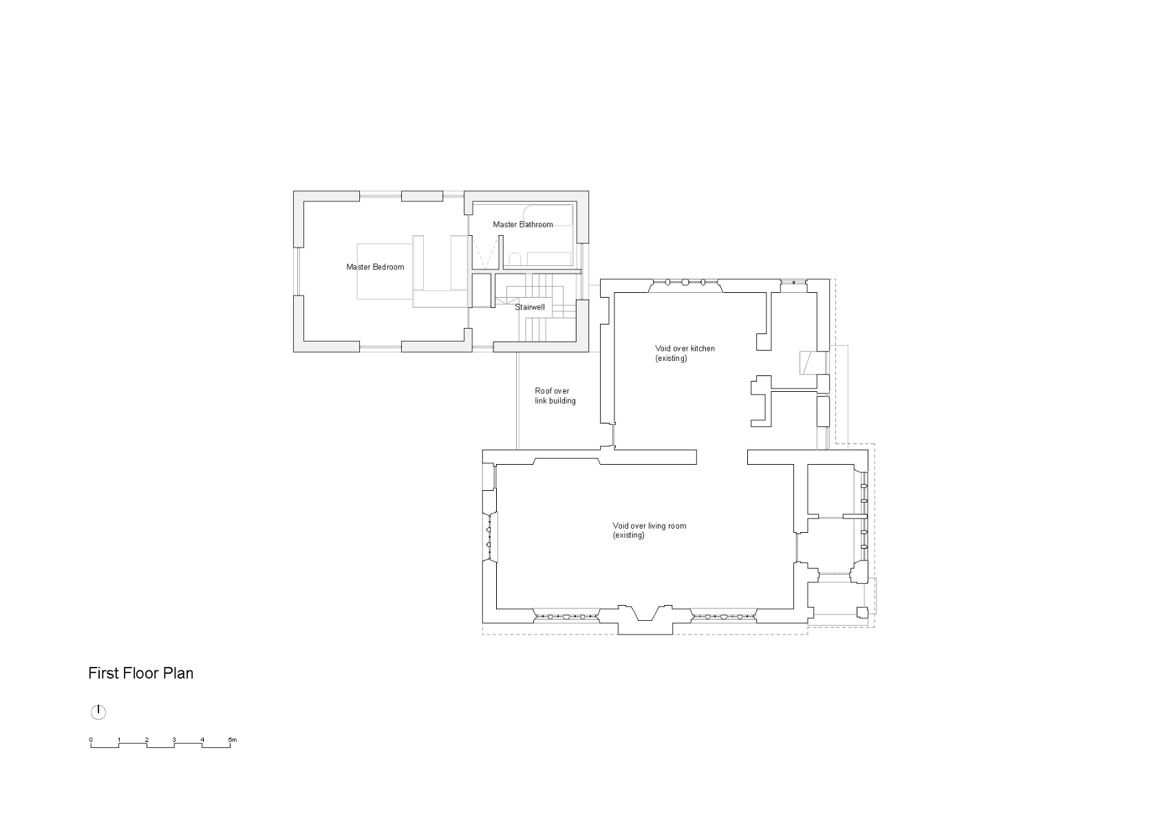
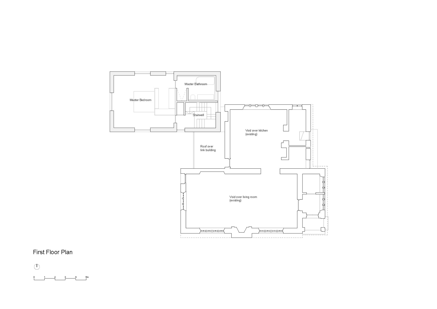
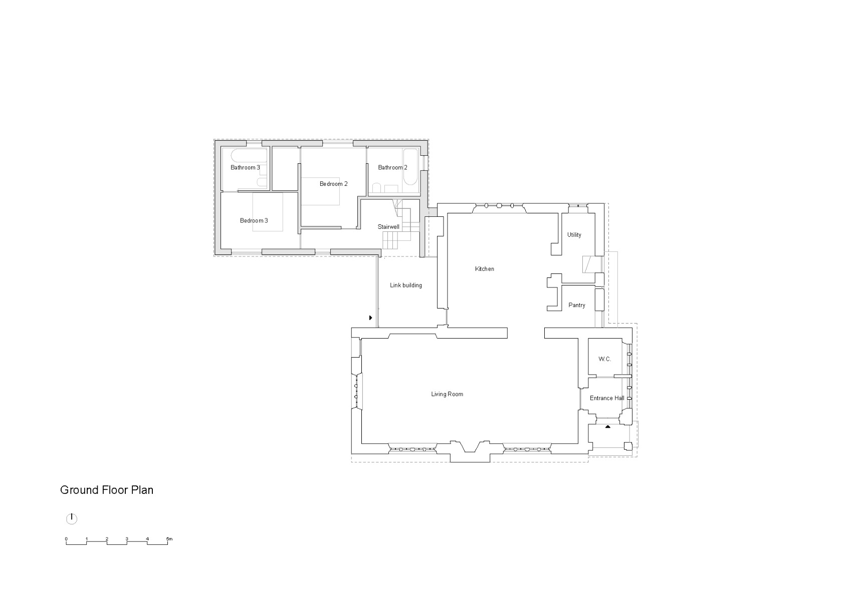
Beim neuerlichen Umbau ließen Bindloss Dawes diesen Annex abreißen und ersetzten ihn durch einen zweigeschossigen Baukörper in Holzrahmenbauweise. Dieser greift die Kubatur des alten Schulhauses auf, ist im Inneren jedoch zwei- statt eingeschossig. Um die Trauf- und Firsthöhe des historischen Nachbarn einzuhalten, ließen die Architekten das Erdgeschoss leicht ins Gelände eingraben. Die Zweigeschossigkeit ist der Erweiterung auch äußerlich anzusehen: Ihr Obergeschoss ist mit einer offenen vertikalen Schalung aus Kastanienholz versehen. Die untere Etage erhielt dagegen eine geschlossene Horizontalschalung aus dem gleichen Material, die aus der Ferne wie ein massiver Sockel wirkt.


Die Holzfassaden des Anbaus lassen dessen Zweigeschossigkeit deutlich erkennen. © Francesca Iovene
Materialien-Dreiklang
Das neue Holzhaus beherbergt vier Schlafzimmer samt Bädern. Im Altbau nebenan sind eine große Küche und ein noch größerer Wohnraum untergebracht. Beide Gebäudeteile sind thermisch voneinander getrennt und lassen sich daher unabhängig beheizen. Das Bindeglied zwischen beiden bildet ein flach gedeckter Vorraum mit Fassade aus Glas und vorbewittertem, galvanisiertem Stahlblech. Das Grau des Blechs bildet einen harmonischen Dreiklang mit dem braunen Naturstein der Schule und dem ebenfalls allmählich verwitternden Kastanienholz. Die Farbgebung im Inneren ist ein Werk der Hausherrin: Sie arbeitet als Farbberaterin bei einem traditionsreichen britischen Farbenhersteller.
Architektur: Bindloss Dawes
Bauherr: Joa und Andrew Studholme
Standort: Pictombe, Bruton, Somerset (GB)
Tragwerksplanung: Momentum
Bauunternehmen: Gregory Renovations























